1732 Foliage Drive Fort Worth, TX 76131

UPDATED:
Key Details
Property Type Single Family Home
Sub Type Single Family Residence
Listing Status Pending
Purchase Type For Sale
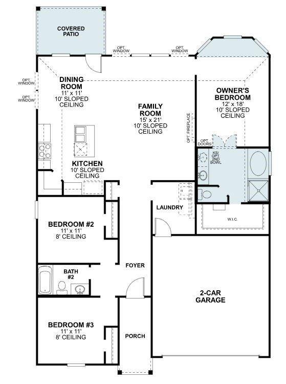
Square Footage 1,630 sqft
Subdivision Sanderos
MLS Listing ID 21035187
Style Traditional
Bedrooms 3
Full Baths 2
HOA Fees $600/ann
HOA Y/N Mandatory
Year Built 2025
Lot Size 5,998 Sqft
Acres 0.1377
Lot Dimensions 50x120
Property Sub-Type Single Family Residence
Property Description
The open-concept floorplan creates an inviting atmosphere where the living areas flow naturally together, making it ideal for both daily life and hosting guests. The owner's bedroom is strategically positioned on the main level for privacy and convenience, while the additional 2 bedrooms provide flexible space for family, guests, or home office needs. With 2 full bathrooms, the home offers practical functionality for busy households. This new construction home represents an opportunity to own a quality-built residence with no previous wear and contemporary design features.
The combination of thoughtful layout, solid construction, and prime Fort Worth location makes this an attractive option for today's homebuyers seeking move-in ready convenience. Schedule your visit today!
Location
State TX
County Tarrant
Community Greenbelt, Playground, Sidewalks
Direction From I-35 W: Head north toward I-35W N. Take exit 59 from I-35W N toward Basswood Blvd. Turn left onto Basswood Blvd. At the traffic circle, take the first exit onto Horseman Rd. Turn left onto E Bailey Boswell Rd. Take a left onto Pepperidge Lane and a right onto Shad Bush Drive.
Rooms
Dining Room 1
Interior
Interior Features Cable TV Available, Decorative Lighting, Granite Counters, High Speed Internet Available, Kitchen Island, Open Floorplan, Vaulted Ceiling(s), Walk-In Closet(s)
Heating Central, Natural Gas
Cooling Ceiling Fan(s), Central Air, Electric
Flooring Carpet, Ceramic Tile
Appliance Dishwasher, Disposal, Gas Cooktop, Gas Water Heater, Microwave, Plumbed For Gas in Kitchen, Tankless Water Heater, Vented Exhaust Fan, Water Filter
Heat Source Central, Natural Gas
Laundry Utility Room
Exterior
Exterior Feature Covered Patio/Porch, Rain Gutters, Lighting, Private Yard
Garage Spaces 2.0
Fence Wood
Community Features Greenbelt, Playground, Sidewalks
Utilities Available City Sewer, City Water, Community Mailbox, Curbs, Individual Gas Meter, Individual Water Meter, Underground Utilities
Roof Type Composition
Total Parking Spaces 2
Garage Yes
Building
Lot Description Few Trees, Interior Lot, Landscaped, Sprinkler System, Subdivision
Story One
Foundation Slab
Level or Stories One
Structure Type Brick
Schools
Elementary Schools Chisholm Ridge
Middle Schools Highland
High Schools Saginaw
School District Eagle Mt-Saginaw Isd
Others
Acceptable Financing Cash, Conventional, FHA, VA Loan
Listing Terms Cash, Conventional, FHA, VA Loan
Special Listing Condition Deed Restrictions
Virtual Tour https://www.propertypanorama.com/instaview/ntreis/21035187

GET MORE INFORMATION




